A commitment to innovation and sustainability
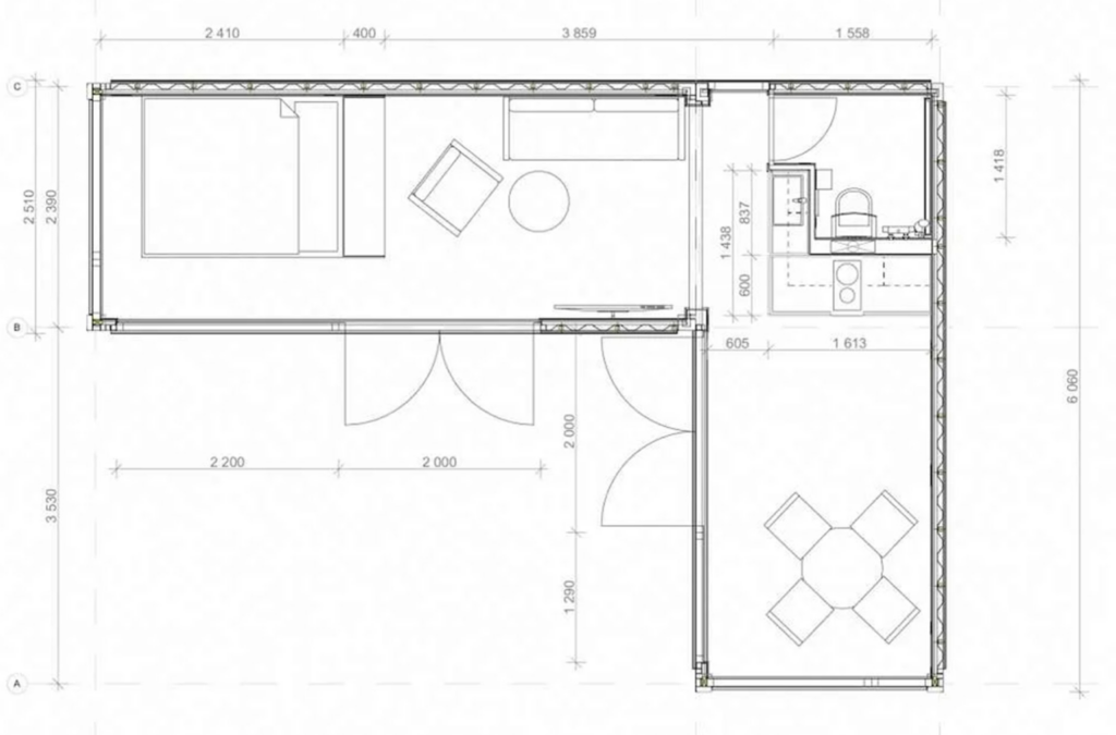
Cabin model 1
This cabin provides 18 m2 of living space which can accommodate two people Technical description Construction materials Gypsum partitions, laminate flooring, bath ceramic wall and floor tiles, washable paint. Doors and windows Exterior PVC doors and windows, thermic transfer resistant glass, interior wood doors. Insulation Thermal basaltic insulation certified against temperature and humidity transfer. Electrical Sockets, switches, electrical panel, lights. Plumbing Water installation and hardware connections. Heating Electric radiant panels, water heater. Ventilation Monosplit air conditioning system. Furniture Fully equipped and furnished bathroom, kitchen, living room and bedroom.





Cabin model 2
This cabin provides 18 m2 of living space which can accommodate two people Technical description Construction materials Gypsum partitions, laminate flooring, bath ceramic wall and floor tiles, washable paint. Doors and windows Exterior PVC doors and windows, thermic transfer resistant glass, interior wood doors. Insulation Thermal basaltic insulation certified against temperature and humidity transfer. Electrical Sockets, switches, electrical panel, lights. Plumbing Water installation and hardware connections. Heating Electric radiant panels, water heater. Ventilation Monosplit air conditioning system. Furniture Fully equipped and furnished bathroom, kitchen, living room and bedroom.




Cabin model 3
This cabin provides 18 m2 of living space which can accommodate two people Technical description Construction materials Gypsum partitions, laminate flooring, bath ceramic wall and floor tiles, washable paint. Doors and windows Exterior PVC doors and windows, thermic transfer resistant glass, interior wood doors. Insulation Thermal basaltic insulation certified against temperature and humidity transfer. Electrical Sockets, switches, electrical panel, lights. Plumbing Water installation and hardware connections. Heating Electric radiant panels, water heater. Ventilation Monosplit air conditioning system. Furniture Fully equipped and furnished bathroom, kitchen, living room and bedroom.




Cabin model 4
This cabin provides 18 m2 of living space which can accommodate two people Technical description Construction materials Gypsum partitions, laminate flooring, bath ceramic wall and floor tiles, washable paint. Doors and windows Exterior PVC doors and windows, thermic transfer resistant glass, interior wood doors. Insulation Thermal basaltic insulation certified against temperature and humidity transfer. Electrical Sockets, switches, electrical panel, lights. Plumbing Water installation and hardware connections. Heating Electric radiant panels, water heater. Ventilation Monosplit air conditioning system. Furniture Fully equipped and furnished bathroom, kitchen, living room and bedroom.




Cabin model 5
This cabin provides 18 m2 of living space which can accommodate two people Technical description Construction materials Gypsum partitions, laminate flooring, bath ceramic wall and floor tiles, washable paint. Doors and windows Exterior PVC doors and windows, thermic transfer resistant glass, interior wood doors. Insulation Thermal basaltic insulation certified against temperature and humidity transfer. Electrical Sockets, switches, electrical panel, lights. Plumbing Water installation and hardware connections. Heating Electric radiant panels, water heater. Ventilation Monosplit air conditioning system. Furniture Fully equipped and furnished bathroom, kitchen, living room and bedroom.




Cabin model 6
This cabin provides 18 m2 of living space which can accommodate two people Technical description Construction materials Gypsum partitions, laminate flooring, bath ceramic wall and floor tiles, washable paint. Doors and windows Exterior PVC doors and windows, thermic transfer resistant glass, interior wood doors. Insulation Thermal basaltic insulation certified against temperature and humidity transfer. Electrical Sockets, switches, electrical panel, lights. Plumbing Water installation and hardware connections. Heating Electric radiant panels, water heater. Ventilation Monosplit air conditioning system. Furniture Fully equipped and furnished bathroom, kitchen, living room and bedroom.




Cabin model 7
This cabin provides 18 m2 of living space which can accommodate two people Technical description Construction materials Gypsum partitions, laminate flooring, bath ceramic wall and floor tiles, washable paint. Doors and windows Exterior PVC doors and windows, thermic transfer resistant glass, interior wood doors. Insulation Thermal basaltic insulation certified against temperature and humidity transfer. Electrical Sockets, switches, electrical panel, lights. Plumbing Water installation and hardware connections. Heating Electric radiant panels, water heater. Ventilation Monosplit air conditioning system. Furniture Fully equipped and furnished bathroom, kitchen, living room and bedroom.




Cabin model 8
This cabin provides 18 m2 of living space which can accommodate two people Technical description Construction materials Gypsum partitions, laminate flooring, bath ceramic wall and floor tiles, washable paint. Doors and windows Exterior PVC doors and windows, thermic transfer resistant glass, interior wood doors. Insulation Thermal basaltic insulation certified against temperature and humidity transfer. Electrical Sockets, switches, electrical panel, lights. Plumbing Water installation and hardware connections. Heating Electric radiant panels, water heater. Ventilation Monosplit air conditioning system. Furniture Fully equipped and furnished bathroom, kitchen, living room and bedroom.




